 +7 702 993 01 77  
профессиональные ЗАМЕРЫ ЖИЛЫХ И КОММЕРЧЕСКИХ ПОМЕЩЕНИЙ В АСТАНЕ
 Услуги
Жилые помещений
 Квартиры, частные дома  Измерение стен, потолков, окон, дверей  Подробный план с точными размерами ✔ Подходит для ремонта и дизайнеров ✔ Учитываем все ниши, углы и выступы ✔ Чертеж на руках на следующий день
Коммерческие помещений
 Офисы, магазины, склады, салоны  Замеры площади для аренды  Замеры витрин, ниш и стендов ✔ Помощь в согласовании аренды и перепланировки ✔ Идеально подходит для установки мебели и оборудования ✔ Чертежи в нужном формате: PDF, DWG, JPG
➕ Обмер инженерных коммуникаций (электроснабжение; выводы водоснабжения и канализации; система отопления; система вентиляции).
Последние обновления и новости |  @zamery.astana
 НАШИ РАБОТЫ
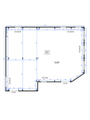
 ТРЦ "Tomiris Towers"
 Коммерческое помещение
 185 кв.м2
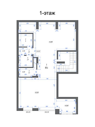
 ТРЦ "Turan Tower"
 1-комн. квартира
 55 кв.м2
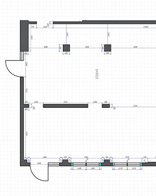
 ТРЦ "Mega Silk Way"
 Магазин детской одежды
 72 кв.м2
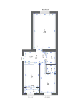
 ЖК "Tamasha 2"
 2-х комн. квартира
 76 кв.м2
 ТРЦ "Damu Mall"
 Магазин "XIMI-V"
 90 кв.м2
Все проекты
 этапы замеров объекта
Последние обновления и новости |  @zamery.astana
 прайс-лист
 до 99 кв.м2
400 тг/м²
 100-199 кв.м2
350 тг/м²
 свыше 200 кв.м2
250 тг/м²
Дизайнерам интерьера действует 20% скидка на услуги
 г. Астана

 +7 702 993 01 77
  zamery.astana